Get a Quote
Your Trusted Rebar Detailing Partner

Precision that Scales
Value that Lasts.

LG Engineering Services supports fabricators, contractors, and consultants across the Gulf. With 15+ years of experience and capacity up to 12,000 tonnes/month, we’re expanding for larger global projects—including US entry.

About Us

We deliver dependable rebar detailing, BBS, BIM, estimation and fabrication support. Our process reduces material waste and site errors, enabling clients to achieve maximum efficiency and cost savings from design to delivery.

At LG Engineering Services, accuracy in detailing ensures structural safety, material savings, and fewer reworks. We optimize bar lengths, lap splices, and fabrication layouts to minimize wastage in factory and on site.

0
Tonnes / month capacity
0
Years of experience
0
+ Projects delivered

Why Choose Us

Accuracy ensures safety and savings. We optimize bar lengths, lap splices, and fabrication layouts to reduce wastage in both factory and site operations.

Mission & Vision

Engineers working on structural drawings

Mission

Deliver precise, waste-minimizing rebar detailing that saves cost and time for our clients.

Team discussing construction vision

Vision

To be a global leader in sustainable and efficient rebar detailing solutions.

How We Ensure Quality

  • Multi-stage QA reviews by senior detailers
  • Standards compliance (ACI / CRSI / ASTM / BS)
  • Clash & constructability validation within BIM
  • Fabrication-first BBS to reduce waste and offcuts
  • Feedback loop with site teams to prevent rework

Our Services

Shop drawings

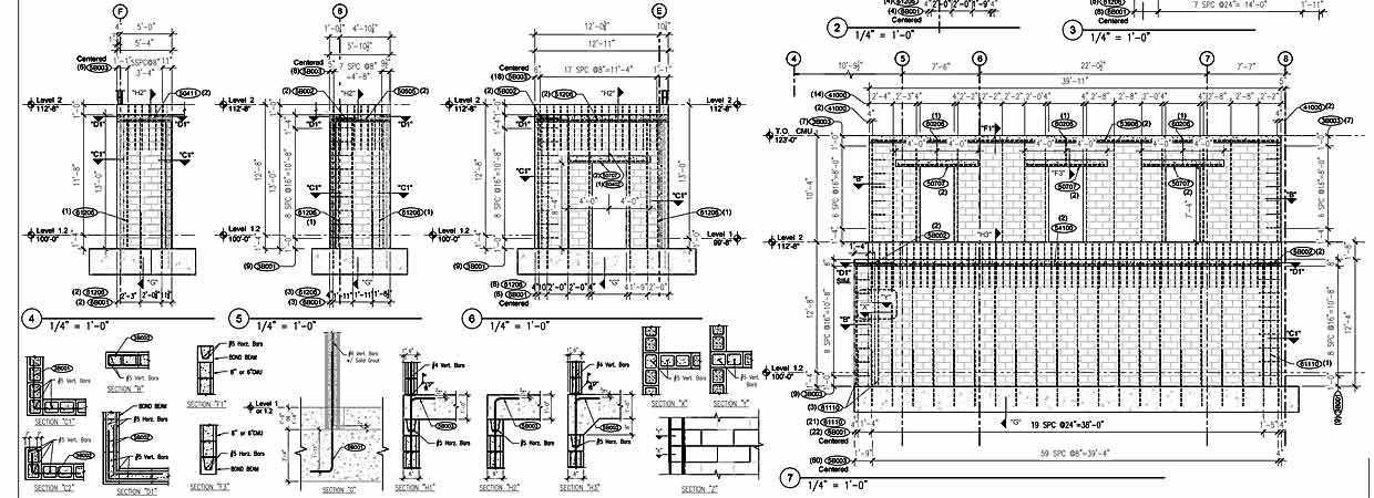
Rebar Detailing & Shop Drawings

Optimized, accurate drawings compliant with ACI, CRSI, ASTM, BS standards.

QA ChecksBuild-ready
BBS sheets

Bar Bending Schedules (BBS)

Structured schedules designed for fabrication efficiency and minimal offcuts.

Cut ListsYard Flow
BIM modeling

3D BIM Modeling

Clash-free coordination, constructability checks, and early detection to reduce waste.

CoordinationClash-free
Quantity estimation documents

Estimation & Quantity Take-off

Precise calculations to prevent over-ordering and control budgets.

AccuracyBudget
Steel fabrication yard

Fabrication Support

Layouts designed for minimum wastage at rebar yards and smoother site placement.

Yard LayoutsLean

Achievements

High-rise projects

High-rise & Infrastructure

Delivered detailing for high-rise, industrial, and infrastructure projects across Gulf countries with consistent quality.

GulfIndustrialInfrastructure
Rebar bundles indicating high throughput capacity

12,000 Tonnes / Month

Demonstrated ability to handle up to 12,000 tonnes/month with disciplined engineering and delivery management.

ScaleReliabilityThroughput
Optimized steel cutting

Material Savings

Significant client savings via optimized bar lengths, lap splices, and fabrication-friendly layouts—reducing offcuts and site errors.

OptimizationWaste ↓Cost ↓
US skyline

US Market Expansion

Scaling our capacity and technology stack to serve larger global projects—including targeted entry into the United States market.

ACI/CRSI/ASTMScaling